Ich
trenne mich von meiner Brunnenbohrausrüstung zu einem
Festpreis
von:
Leider schon verkauft!!




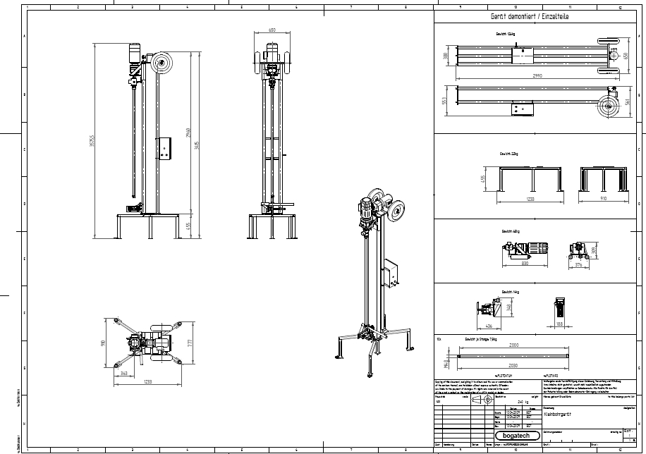
Eine Zeichnung mit den Abmessungen für den Transport finden Sie hier:
Mit dem
Bohrgerät dieser Bauart wurden einige Brunnen bis zu einer
Tiefe von 38m gebohrt. Das Gerät wurde mit 3D-CAD konstruiert
und man kann mit Sicherheit sagen, dass es sich durch viele Details von
fast allen sonst angebotenen Geräten unterscheidet. Leute, die
schon mal einen Brunnen mit einem ähnlichen Gerät
gebohrt haben, werden den Unterschied erkennen. Hier nur mal ein paar
Unterschiede:
- große
Spülpumpe – ist nötig um
das Bohrgut überhaupt nach oben zu fördern.
- großer
Schlauchdurchmesser ( C52 ) zum Spülkopf
– keine Gardena oder Geka ½“ (mit einem
½“ Schlauch 50m tief bohren ist völliger
Unsinn!!)
- Hubkonstruktion
zum Drücken des Bohrmotors – denn
nur mit Eigengewicht des Motors können Sie lediglich durch
extrem leichte Böden bohren!!
- Bohrstangen
mit großem Durchmesser und groben Gewinde (M48)
– kleine Bohrrohre z.B. Installationsrohr mit 1 Zoll-Gewinde
würde der Bohrmotor sofort überdrehen durch sein
hohes Drehmoment!!
- vernünftiger
Rohrschraubstock zum Halten der Bohrstangen beim
Gestängeziehen (20m Gestänge = 10 x 10kg = 100kg zum
Halten!!!) – und bitte nicht 5cm über dem Boden –
da möchte ich nicht arbeiten und man muss jedes Mal eine
Spülgrube ausbuddeln!!!!!!
- das
Gerät ist sehr einfach zum Transport demontierbar 4xM12
– andere Geräte müssen als ein
Stück auf einen Hänger gehoben werden! Das sind fast
immer mehr als 250kg!
- Spritzwassergeschützter
Schaltschrank mit schaltbarer 230V
Steckdose, Motorschutzschaltern etc.
- kräftiger
Bohrmotor mit vernünftiger Drehzahl -
kleine Motoren ( 0,25kw) mit 15 Umdrehungen da brauchen Sie zum Bohren
ewig!
- Es
gibt noch so viele Details....... Hier sind noch drei Videos von den
Bohrungen bei mir. Da ist sicherlich auch schon eine Menge drauf zu
sehen, die den Betrieb des Gerätes zeigen.
Bei
weiterem Interesse können Sie mich per Email
kontaktieren . Nach vorheriger Absprache kann das
Gerät natürlich auch gerne besichtigt werden.
Folgendes
gehört dazu ( ich hoffe ich habe nichts wichtiges
vergessen!)
- Bohrturm
kompl. mit Hubmotor, Schaltschrank und Fußgestell.
- Bohrmotor
( 110 1/min – 3kW) mit Hubschlitten und
Federeinheit mit Kette
- Spülkopf
M48 mit C-Anschluss 2“, Kugellager,
Wellendichtringen
- Bohrrohrhalter
3“ von Format mit Losbrechvorrichtung
für die Gewinde
- 10
x Bohrgestänge je 2m mit M48 Gewinde – also
gesamt 20m
- Spülbohrkrone 150mm
Vidia bestückt
- große
Benzinspülpumpe 60.000L/h ; 3Bar; +
Saugschlauch/ Rohr
- C-Schlauch
1 x 10m
- KG-Stand
Spülrohr 1xØ200
- eine
supergenaue Anleitung, Skizzen/ Zeichnungen etc...
Das
Einzige was jetzt noch zum sofortigen Losbohren fehlt, ist lediglich
ein Starkstromverlängerungskabel, eine 2“ Rohrzange
und ein altes Kinderplanschebecken.
Für
einen Aufpreis von ca. 100€ besorge ich noch eine Zange und
10m Starkstromkabel!
Kein
Versand! – nur Selbstabholung!!!
Eine Lieferung ist jedoch, falls gewünscht, möglich.
Vorher nachfragen und ich kann den Preis nennen.
Wird
ein Transport (z.B. Abholung durch Spedition) erwünscht, ist
dieser incl. Verpackung – Verladung SELBST
zu organisieren und ist zwingend vorher zu besprechen!
Als
Privatverkäufer schließe ich jegliche
Gewährleistung sowie Haftung für
Folgeschäden aus.
So
wird damit gebohrt !!!