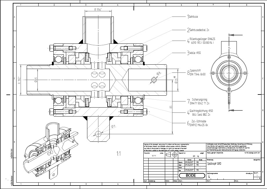
Hier gibt es GRATIS die komplette Fertigungszeichnungen eines Spülkopfes. Dieser Kopf ist Kugelgelagert und mit Gleitringdichtungen abgedichtet. Unbedingt mal anschauen... einziges Manko-- Komplett ist für das Material schon so mit min 200 Euro zu rechnen.

 kopf Eine Schnittansicht des Kopfes.
Es ist hier ein 3D-Modell im Parasolid Format hinterlegt.
Zeichnung Die Zeichnung im PDF Format
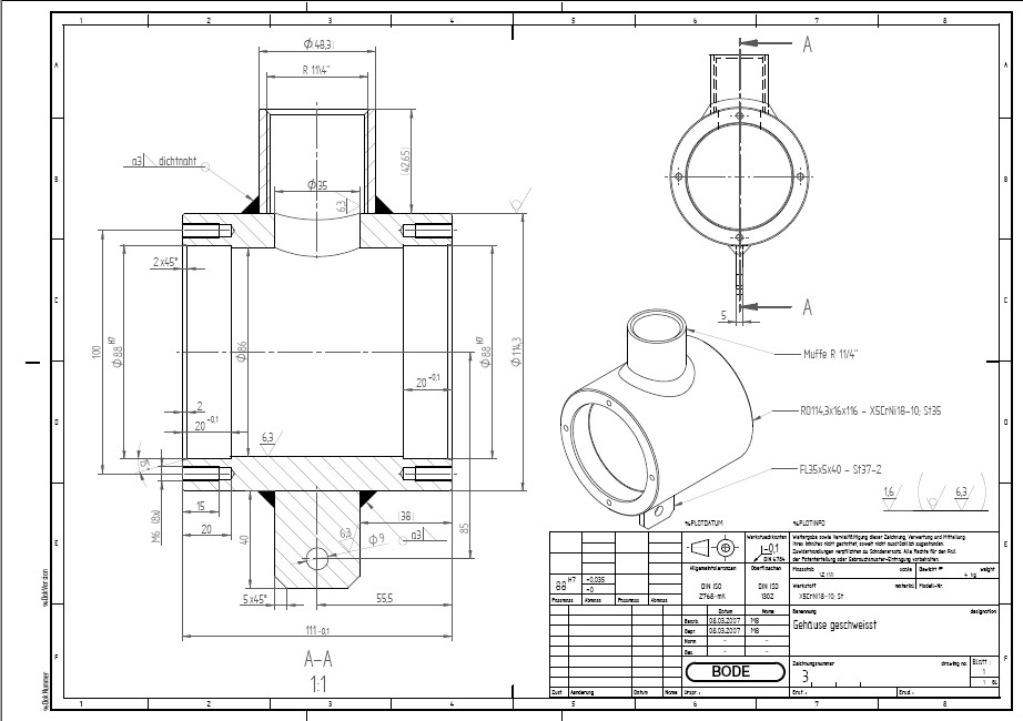
gehaeust Die Zeichnung im PDF Format
welle Die Zeichnung im PDF Format
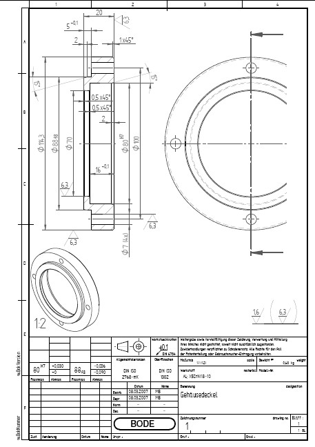
deckel Die Zeichnung im PDF Format
dichtung Die Gleitringdichtungen